Zehnder Pumpen Schmutzwasser-Hebeanlage 11463
- steckerfertig montiert – problemlose Montage
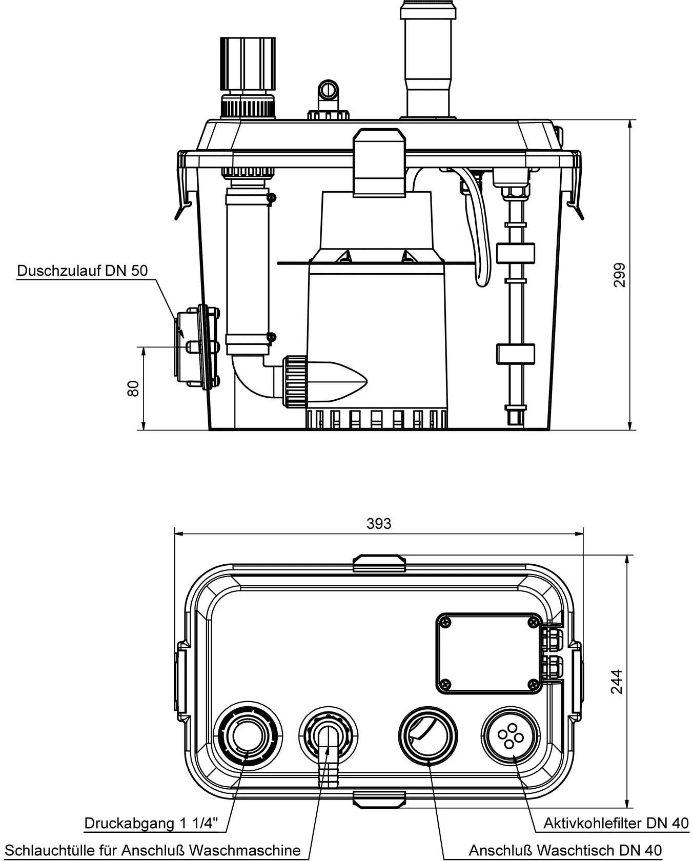
- Sammelbehälter aus PP mit ca. 10 l Nutzinhalt
- im Behälterdeckel integriertes Schaltgerät mit akustischer Alarmmeldung bei unzulässig hohem Wasserstand
- potentialfreier Kontakt für externen Alarm oder Waschmaschinenstopp
- einfache Montage und Wartung durch Schiebestück DN 40 für den Zulaufanschluss Waschtisch
- direkt am Deckel montierte Pumpe
- keine Kabeldurchführung am Behälter
- separater Geräteanschluss mit Schlauchtülle
- vorbereiteter und beidseitig nutzbarer Duschzulauf DN 50
- (von Behälterunterkante bis Rohrmitte Duschzulauf nur 80 mm)
- Betriebstemperatur 40 °C (kurzzeitig bis 90 °C)
- Druckabgang 1 1/4″ mit integrierter Rückschlagklappe
- Behälterentlüftung durch Aktivkohlefilter
- 1,5 m Anschlusskabel mit Schutzkontakt-Stecker
- Förderung von häuslichem Schmutzwasser ohne Fäkalien aus Waschmaschine, Dusche, Waschtisch etc. zur Überflurinstallation in frostgeschützten Räumen unterhalb der Rückstauebene







Rezensionen
Es gibt noch keine Rezensionen.